PROGETTAZIONE
Uffici DAZN Milano
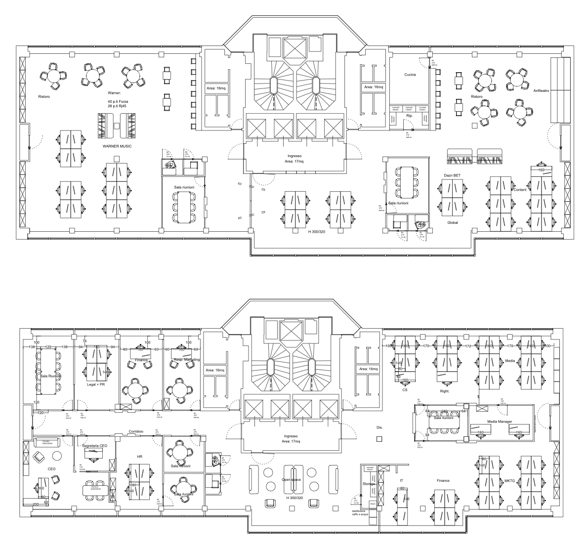
Per la nuova sede milanese di DAZN, affacciata su piazza della Repubblica, abbiamo curato l’intervento di ristrutturazione degli interni, intervenendo su più livelli: dalla pavimentazione alla ridistribuzione degli spazi, fino alla definizione puntuale del progetto illuminotecnico.
L’illuminazione è stata studiata per garantire un comfort visivo ottimale, evitando l’affaticamento degli occhi e valorizzando i diversi ambienti con punti luce calibrati. Gli spazi sono stati ripensati per favorire il lavoro in team, con un’organizzazione funzionale e trasparente. L’impiego di vetrate come elementi di separazione risponde a questa logica: isolano acusticamente senza compromettere la visione d’insieme, mantenendo un senso di apertura e controllo.
Il concept si ispira al mondo dello sport, che diventa il fil rouge capace di connettere in modo coerente tutti gli ambienti. Un progetto speciale, nato dall’incontro tra competenza tecnica e creatività progettuale.
JLA RISTRUTTURAZIONI Via Settembrini 52, 20124 Milano
© 2025 by JLA RISTRUTTURAZIONI srl
Informativa sui cookie
Informativa sulla privacy

